Mietangebot
Bornheim-Brenig: SCHÖNE 3 ZIMMERWOHNUNG MIT SÜD-BALKONIN RUHIGER BESTLAGE, ca. 77 m² Wfl.
VERMIETET
Objektnummer: 9338-16 Ort: 53332 Bornheim-BrenigWohnfläche: ca. 77 m² Zimmer: 3Schlafzimmer: 2Badezimmer: 1Etage: 1Kaltmiete: 690 EuroNebenkosten: 269 EuroWarmmiete: 959 EuroStellplatz im Außenbereich: 17,50 EURHaustiere: nur nach AbspracheKaution: 1.380 EuroBaujahr: 1995Zustand: gepflegtHeizungsart: Gas-ZentralheizungFahrstuhl: kein FahrstuhlStellplatzart: Stellplatz im FreienStellplatzanzahl: 1 - 2Balkon: ja (ca. 3,4 m)Kellerraum: jaDSL: jaBad: Wannenbad ohne FensterSat TV: javerfügbar ab : 1.05.2025Energieverbrauchs-kennwert : 91 kWh/(m² *a) Energieverbrauch für WW ist enthalten
Objektbeschreibung
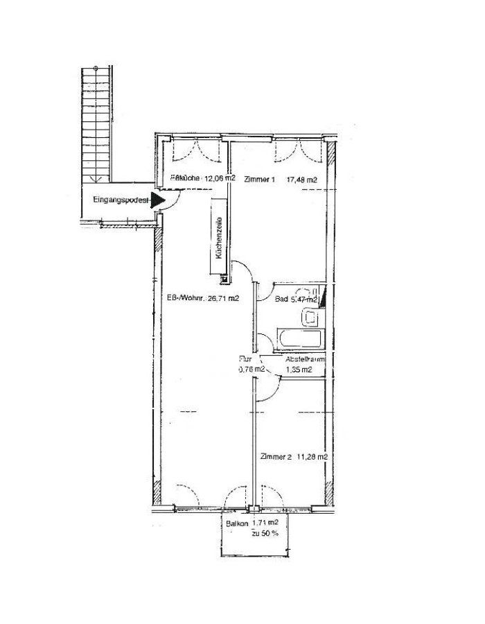
Diese sehr schöne 3-Zimmer-Wohnung mit einem kleinen Südbalkon befindet sich in der ersten Etage einer außergewöhnlichen Wohnanlage in Bornheim-Brenig und ist ideal für 1 bis 2 Personen geeignet. Jede der Wohnungen verfügt über einen eigenen Eingang. Bei dieser Wohnung ist der Eingang über die Treppe eines Gründaches mit sehr schönem Ausblick erreichbar. Über diese Treppe gelangen Sie direkt zur Eingangstüre der Wohnung, welche sich in der Küche befindet.
Die Wohnung besticht durch eine gut durchdachte Raumaufteilung, einen sehr schönen mediterranen Fliesenboden in der Küche und einen kleinen Balkon auf der Südseite das Hauses, welcher einen sehr netten Ausblick in den Garten der Wohnanlage bietet.
Aufteilung:
Zwei Schlafzimmer und ein Wohnzimmer, Küche mit integrierter Essecke, fensterloses Badezimmer mit Wanne, kleine Abstellkammer mit Waschmaschinenanschluss, ca. 3,4 m² großer Balkon zur Südseite des Hauses.
Haustiere: Keine Hunde - Ausnahmen nur nach Absprache!
Inklusive ca. 5 m² Kellerabteil.
Außenrolladen sind bei diesem Objekt keine verbaut.
Bezug: frei ab 1.05.2025
Ausstattung
Böden: Vinylboden und Fliesenboden
Ein eigener Kellerraum ist vorhanden (ca. 5 m²).
Eigene, der Wohnung zugehörige Wasseruhren für Warmwasser und Kaltwasser sind vorhanden.
Heizung: Gaszentralheizung mit normalen Radiatoren. Warmwasser wird über die Gasheizung erzeugt.
Lage
Ruhige Hanglage mit bestem Ausblick - umgeben von einem großem Garten. Die Entfernung zum Bäcker und Lebensmittelladen beträgt ca. 200 m. Bornheim Brenig bietet in unmittelbarer Nähe als Naherholungsgebiet den Naturpark Kottenforst-Ville. Hier erwarten Sie u.a. die Golfanlage Römerhof in einer Freizeit-Oase: 100 Hektar himmlisch ruhiges Golfparadies inmitten Feld, Wald und Obstwiesen.
Autobahnanschluß:
Ca. 8 km zur AS Swisttal-Heimerzheim der A 61 und ca. 7 km zur AS Bornheim der A 555.
Sonstiges
Wir bitten Sie höflich die nachfolgenden Punkte zu beachten und danken Ihnen herzlich für Ihr Verständnis.
Sehr gerne zeigen wir Ihnen die Vorzüge dieser Wohnung vor Ort. Bitte betreten Sie das Grundstück nicht ohne vorherige Terminabsprache mit uns.
Bei Interesse übersenden Sie uns einfach eine Anfrage entweder direkt per E-Mail oder über Ihr genutztes Immobilienportal und registrieren Sie sich auf unserer Kundenplattform Propstack. Einen Link zu unserer Kundenplattform Propstack erhalten Sie automatisch nach Ihrer Anfrage per E-Mail.
Gerne können Sie uns auch eine kurze Vorstellung Ihrer Person übersenden. Wir bearbeiten Ihre Anfrage umgehend und melden uns dann persönlich bei Ihnen.
Bitte achten Sie darauf, dass Sie uns Ihre vollständige Adresse inklusive Ihrer Telefonnummer übermitteln. Bitte haben Sie Verständnis dafür, dass es aufgrund eines sehr hohen Aufkommens von Anfrage zu einer verzögerten Rückmeldezeit kommen kann.
Kaltmiete: 690 Euro
Nebenkosten: ca. 269 Euro zzgl. Haushaltsstrom
Aussenstellplatz: 17,50 Euro
690 Euro Kaltmiete zzgl. 17,50 Euro KFZ-Stellplatz zzgl. ca. 269 Euro NK = 976,50 Euro zzgl. Strom
Alle Angaben zu den Verbrauchsnebenkosten sind Circa-Angaben und können je nach eigenem Verbrauch und Verhalten stark variieren.
Der Mietvertrag wird mit einer Staffelmiete vereinbart (jährliche Steigerung der Kaltmiete von 1,5 %).
Die Küche kann nicht übernommen werden.
Angaben zum Energieausweis:
Energieausweistyp: Verbrauchsausweis
Wesentlicher Energieträger: Gas
Heizungsart: Zentralheizung
Baujahr des Hauses: 1995
Energieeffizienzklasse: C
Energieverbrauchskennwert: 91 kWh/(m²*a) Energieverbrauch für Warmwasser ist enthalten
Haftungsausschluß:
Trotz regelmäßiger Prüfung von Daten, Bildern und Informationen übernehmen wir keine Gewähr für die Richtigkeit der Angaben, da das Exposé anhand der Unterlagen des Vermieters erstellt wurde !
Eine Zwischenvermietung ist nicht ausgeschlossen !


























