Mietangebot
HENNEF UCKERATH: TOP EFH MIT KAMIN, CARPORT, GARTEN UND SUPER AUSBLICK - ca. 152 m² Wfl.

VERMIETET
Objektnummer: 9327Ort: 53773 Hennef UckerathWohnfläche: ca. 152 m² Grundstücksfläche: ca. 800 m²Objektart: EinfamilienhausZimmer: 4Schlafzimmer: 2Badezimmer: mit Wanne & DuscheGäste-WC: jaKaltmiete: 1.700 EURNebenkosten: ca. 270 EUR zzgl. Heizöl zzgl. StromWarmmiete: ca. 2.257 EUR zzgl. StromKaution: 4.000 EUREinbauküche: vorhandenBaujahr: 1991Stellplatzart: Carport und Stellplatz im FreienMiete für Stellplatz: 50 EURStellplatzanzahl: 2Zustand: gepflegtHeizungsart: Öl-ZentralheizungKamin: jaTerrasse: jaDSL: jaSat TV: jaKabelanschluss: neinunterkellert : javerfügbar ab: ab 1.10.2023 oder nach Vereinbarung
Objektbeschreibung
Das im Jahr 1991 erbaute Einfamilienhaus besticht durch seine ausgezeichnete Lage, die tolle Aufteilung der Räume und einen fantastischen Weitblick bis in das Siebengebirge.
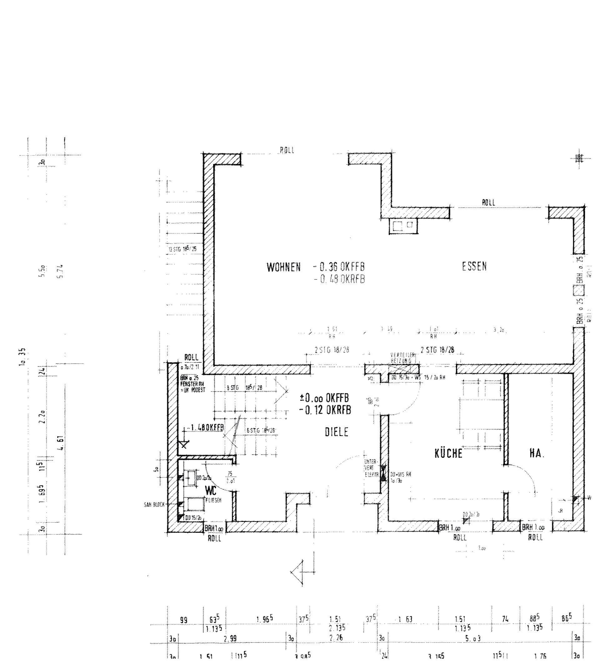
Erdgeschoss:
Zentral gelegene Diele, Wohn-Eßzimmer (ca. 47 m²), Küche (ca. 12,5 m²) mit integrierter Einbauküche, Hauswirtschaftsraum (ca. 7 m²), Gäste-WC (ca. 2,5 m²), große Terrasse mit traumhaftem Garten und Ausblick. Das komplette Erdgeschoß ist mit einem Fliesenboden belegt. Rollläden sind vorhanden - teilweise elektrisch.
Obergeschoss:
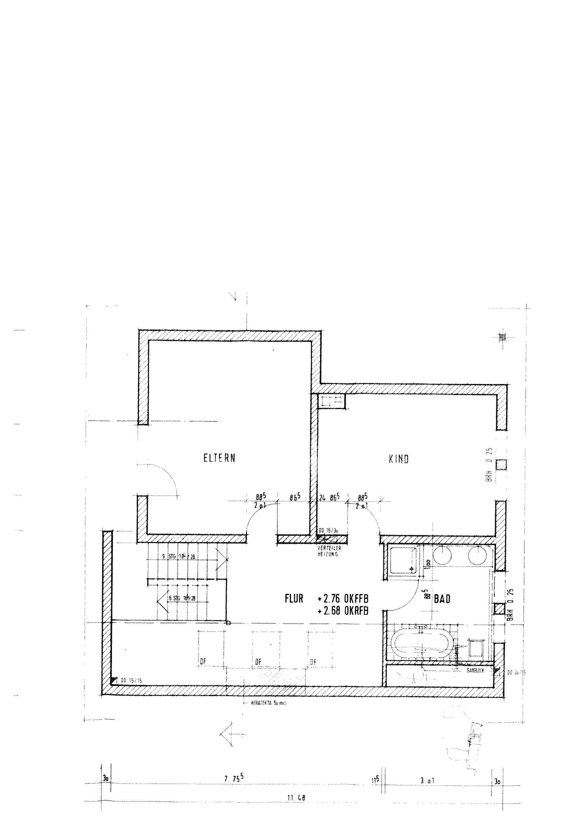
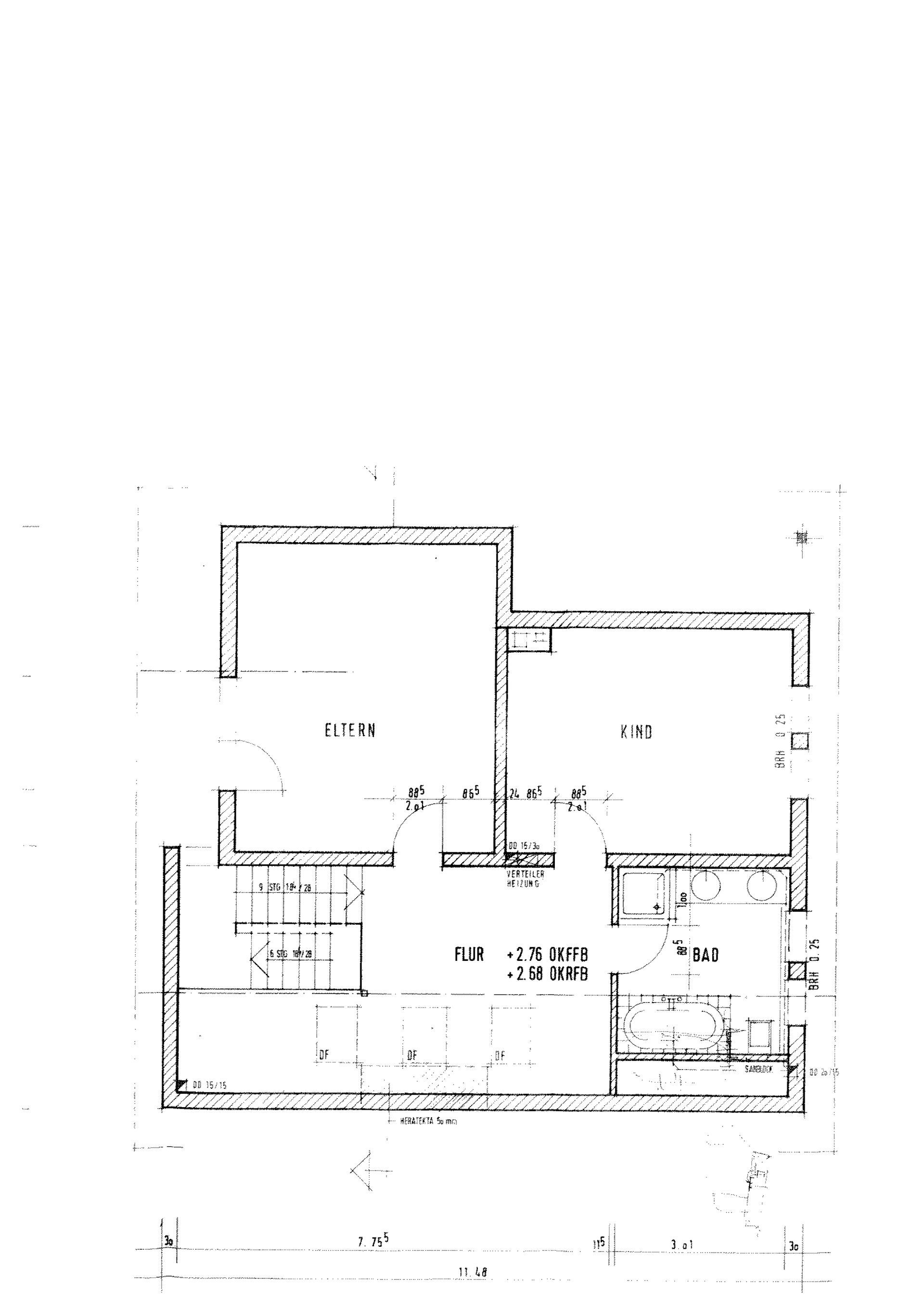
Über eine mit Fliesen belegte Treppe gelangt man ins Obergeschoss (Rolläden sind hier nicht vorhanden), welches wie folgt unterteilt ist:
Großzügiger Flur/ Arbeitsbereich mit sehr schönem hellen Dielenboden (ca. 12,5 m²), Schlafzimmer 1 (ebenfalls mit Dielenboden und praktischen Einbauschränken bis in die Schräge), Schlafzimmer 2 (mit praktischen Einbauschränken und Regal in der Schräge), Badezimmer mit Fenster, Wanne und Dusche.
Aufgrund der großzügigen Dimensionierung des Flurs, besteht hier auch die Möglichkeit einen Arbeitsplatz einzurichten. Die beiden Einbauschränke in den Schlafzimmern stehen den Mietern zur Nutzung zur Verfügung, müssen in den Räumlichkeiten verbleiben und können nicht demontiert werden.
Kellergeschoss:
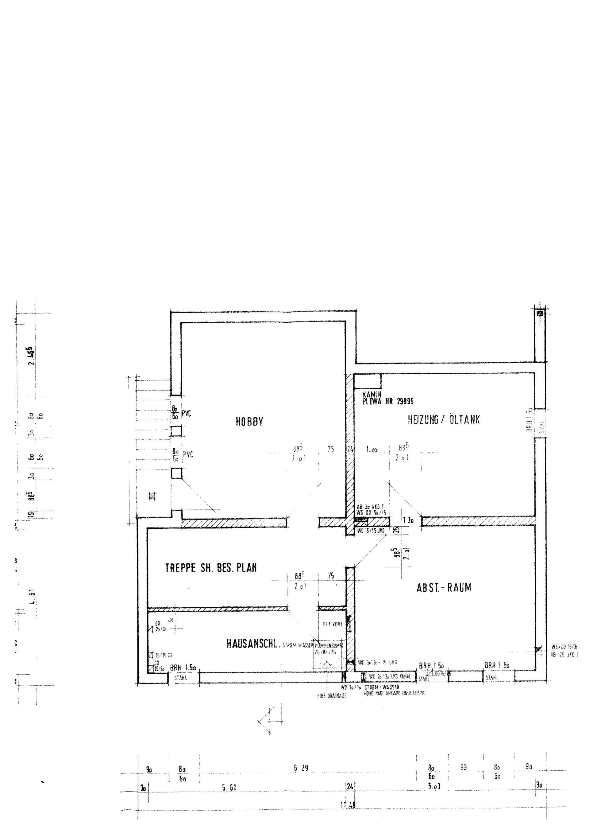
Das Haus ist vollunterkellert und bietet hier einen großzügigen Hobbyraum, der auch über eine Außentreppe erreichbar ist, einen großen Abstellraum, den Heizungsraum und den Hausanschlußraum.
Beheizt wird das Objekt durch eine Ölzentralheizung, welche sich ebenfalls im Keller befindet.
Bei diesem Haus haben Sie die seltene Möglichkeit, den zentral gelegenen Kaminofen im Wohnzimmer für gemütliche Abende zu nutzen.
Außenanlagen: großer Garten mit zahlreichen Bäumen und Sträuchern. Die Gartenpflege obliegt dem Mieter.
Bezug: Frei ab 1.10.2023 oder nach Vereinbarung.
Ausstattung
- Fliesenboden im EG
- Gäste-WC im EG
- Kamin im Wohnzimmer
- Terrasse mit großer, elektrischer Markise
- Badezimmer mit Wanne und Dusche im OG
- heller Esche-Parkettboden im Flur und den Schlafzimmern im OG
- grosszügiger Koch-Essbereich mit Einbauküche
- Hauswirtschaftsraum neben der Küche im EG
- Fernsehempfang: Sat - TV
- Waschmaschinenanschluss und Trockneranschluss im HWR
- 2 KFZ-Stellplätze direkt am Haus
Lage
Das Einfamilienhaus liegt zentral in Hennef-Uckerath. Der Uckerather "Markt" mit all seinen Einkaufsmöglichkeiten und einem großen Café ist nach kurzem Fussweg (ca. 5 Minuten) erreicht. Ebenfalls gut zu Fuß zu erreichen sind die Bushaltestellen an der Westerwaldstraße.
In unmittelbarer Umgebung befinden sich Lebensmittelhändler, Discounter, ein Drogerie Markt, eine Apotheke sowie eine Postannahmestelle. Eine Metzgerei, zwei Bäckereien und weitere Geschäfte und Cafés ergänzen das sehr gute Nahversorgungsangebot.
Zwei Kindergärten (mit Übermittagbetreuung) sowie eine Grundschule (mit Nachmittagsbetreuung) und angeschlossenem Hallenbad sind vor Ort.
Weiterführende Schulen wie Gymnasium, Haupt,- Real,- und Gesamtschule befinden sich in Hennef oder Eitorf. Schulbusverkehr sichert den Transport der Schüler.
Autobahnanschluß:
ca. 8 km (Fahrzeit ca. 10 Minuten) über die B8 zum Autobahnanschluss Hennef (A 560) von hier gelangt man unmittelbar zur A 3 und zur A 59.
Entfernung nach Köln Zentrum ca. 45 km; Entfernung nach Bonn ca. 24 - 29 km.
Öffentl. Verkehrsanbindung:
Die Mobilität im öffentlichen Personennahverkehr ist durch mehrere Buslinien gewährleistet. Das Nachtbus-Netz sorgt bis in den frühen Morgen für Mobilität.
Sonstiges
Sehr gerne zeigen wir Ihnen die Vorzüge dieses Objektes vor Ort. Bitte betreten Sie das Anwesen nicht ohne vorherige Terminabsprache mit uns.
Bei Interesse übersenden Sie uns bitte Ihre vollständige Adresse inklusive Ihrer Telefonnummer. Gerne können Sie uns auch eine kurze Vorstellung Ihrer Person übersenden. Wir bearbeiten Ihre Anfrage umgehend und melden uns dann persönlich bei Ihnen.
Senden Sie uns einfach eine Anfrage entweder direkt per E-Mail oder über Ihr genutztes Immobilienportal und registrieren Sie sich auf unserer Kundenplattform Propstack. Einen Link zu unserer Kundenplattform Propstack erhalten Sie automatisch nach Ihrer Anfrage per E-Mail. Dort können Sie die Adresse, weiter Fotos und Informationen zur Immobilie erhalten.
Kaltmiete: 1.750 Euro inkl. Stellplatz zzgl. Nebenkosten
Nebenkosten: ca. 270 Euro zzgl. Heizöl zzgl. Haushaltsstrom
1.750 Euro KALTMIETE inkl. Stellplatz zzgl. ca. 270 Euro NK = 2.020 Euro zzgl. Heizöl zzgl. Strom
1.750 Euro inkl. Stellplatz zzgl. Nebenkostenvorauszahlung von ca. 210 Euro (Schmutzwasser, Niederschlagswasser, Grundsteuer, Wohngebäudeversicherung, Haftpflicht) an die Eigentümerin zzgl. ca. 60 Euro für Frischwasser, Müllgebühren, Heizungswartung und Schornsteinfeger.
Die Nebenkostenposten Frischwasser (hier mit 6 m³ Frischwasser pro Monat gerechnet), Müllgebühren, Heizungswartung und Schornsteinfeger rechnen die jeweiligen Versorger/ Handwerker direkt mit den Mietern ab (derzeit ca. 60 Euro pro Monat).
Heizöl und Strom wird vom Mieter ebenfalls direkt an den Versorger bezahlt, so dass Sie selbst die Möglichkeit haben, einen günstigen Energielieferanten auszuwählen. Der Jahresbedarf für Heizöl lag im Jahr 2022 bei ungefähr 3.000 Litern, was beim derzeitigen Heizölpreis von ca. 0,95 Euro/Liter ungefähr 237 Euro Unkosten pro Monat verursacht.
Alle Angaben zu den Verbrauchsnebenkosten sind Circa-Angaben und können je nach eigenem Verbrauch und Verhalten stark variieren.
Kaution: 4.000 Euro
Haustiere: nur nach Absprache !
Die sehr schöne und gepflegte Küche ist im Mietpreis enthalten und kann nicht demontiert werden.
Energieausweis:
Energieausweis: Bedarfsausweis
Endenergiebedarf: 148,8 kWh/(m²*a)
Energieeffizienzklasse: E
Baujahr Gebäude: 1991
Heizungsart: Zentralheizung
wesentlicher Energieträger: Heizöl EL, Holz
Mit gelegentlichem Fluglärm aufgrund der Einflugschneise des Köln-Bonner Flughafens muß gerechnet werden.
Haftungsausschluß:
Trotz regelmäßiger Prüfung von Daten, Bildern und Informationen übernehmen wir keine Gewähr für die Richtigkeit der Angaben, da das Exposé anhand der Unterlagen des Vermieters erstellt wurde!
































