Mietangebot
Bornheim-Brenig: EXKLUSIVE 3-ZIMMERWOHNUNG IN HISTORISCHEM AMBIENTEBARRIEREFREI - ca. 85 m² Wfl.
VERMIETET
Objektnummer: 9319Ort: 53332 Bornheim BrenigWohnfläche: ca. 85 m² Objektart: barrierefreie EG-WohnungZimmer: 3Schlafzimmer: 2Badezimmer: mit DuscheGäste-WC: jaKaltmiete: 890 EURNebenkosten: 254 EURWarmmiete: 1.144 EURKaution: 1.780 EURBarrierefrei: jaBaujahr: 1850Sanierungsjahr: 2017Zustand: kernsaniertHeizungsart: Gas-ZentralheizungStellplatzart: Stellplatz im FreienStellplatzmiete: 17,50 EURStellplatzanzahl: 1Terrasse: ja (Süd-West Ausrichtung)DSL: jaSat TV: jaunterkellert : neinverfügbar ab: ab 1.11.2022 oder nach Vereinbarung Energieausweis: nicht notwendig, da denkmalgeschützt
Objektbeschreibung
Das im Jahr 1850 errichtete und denkmalgeschützte Nebengebäude (mit insgesamt 8 Wohneinheiten) eines barocken Anwesens bietet im EG diese sehr geschmackvoll ausgestattete und großzügige Wohnung. Die sehr schön gestalteten Außenanlagen sowie die aussergewöhnliche Ausstattung der Wohnung schaffen einen anspruchsvollen Rahmen mit historischen Details. Leben und Wohnen in gediegenem Ambiente umgeben von viel Grün, mitten in einem traumhaften Park - hier kann man sich wirklich wohlfühlen.
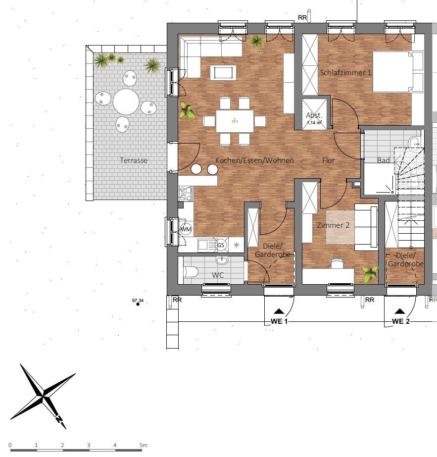
Zu den sehr schön geschnittenen Räumlichkeiten der Wohnung gehören ein Schlafzimmer (ca. 15 m²), ein Arbeitszimmer (ca. 11 m²), ein barrierefreies und modernes Bad mit Dusche (ca. 4 m²), ein Wohnzimmer mit offener Küche (ca. 33 m²) und ein Garderobenschrank/ Abstellraum, welcher in die Diele integriert ist.
Die Wohnung selbst hat eine Größe von ca. 77 m². Hinzu kommt noch eine Terrasse mit einer Fläche von ca. 16 m², welche anteilig mit 8 m² zur Wohnfläche hinzugefügt wird, so dass eine Gesamtwohnfläche von ca. 85 m² zur Verfügung steht.
Die Terrasse bietet einen sehr schönen Blick über den angrenzenden kleinen See.
Die Böden bestehen aus einem pflegeleichten Vinylboden, welcher in rustikaler Eichenoptik ausgeführt wurde. Im Eingangsbereich, dem Gäste WC und dem Badezimmer wurde ein moderner Fliesenboden verlegt.
Ein separater Kellerraum steht leider nicht zur Verfügung, da das Gebäude nicht unterkellert ist.
Das Gebäude wurde im Jahr 2017 kernsaniert.
Ausstattung
- hochwertiger Vinylboden in den Wohnräumen
- modernes, innenliegendes Bad mit barrierefreier großer Dusche
- separates Gäste-WC
- Waschmaschinenanschluss in der Küche
- grosszügig und offen geschnittener Wohn-Koch-Essbereich
- Fußbodenheizung
- separater Wärmemengenzähler für jede Wohnung
- Warmwasser wird über einen Durchlauferhitzer erzeugt
- Abstellraum/ Schrank (ca. 1,14 m²) in die Diele integriert
- eigene Terrasse mit Süd-West Ausrichtung mit einem sehr tollen Ausblick
Lage
Das unter Denkmalschutz stehende historische Anwesen befindet sich in Bornheim-Brenig, ca. 2 km vom Zentrum entfernt. Hier geniessen Sie einen wunderschönen Ausblick in bester Hanglage umgeben von einem parkähnlichen Grundstück.
Bornheim bietet in unmittelbarer Nähe als Naherholungsgebiet den Naturpark Kottenforst-Ville. Hier erwarten Sie u.a. die Golfanlage Römerhof in einer Freizeit-Oase: 100 Hektar himmlisch ruhiges Golfparadies inmitten Feld, Wald und Obstwiesen.
Autobahnanschluß:
Ca. 8 km zur AS Swisttal-Heimerzheim der A 61 und ca. 6,5 km zur AS Bornheim der A 555 (ca. 7 Minuten Fahrzeit).
Sonstiges
Wir bitten Sie höflich die nachfolgenden Punkte zu beachten und danken Ihnen herzlich für Ihr Verständnis.
Sehr gerne zeigen wir Ihnen die Vorzüge dieses Objektes vor Ort. Bitte betreten Sie das Anwesen nicht ohne vorherige Terminabsprache mit uns.
Bei Interesse übersenden Sie uns bitte Ihre vollständige Adresse inklusive Ihrer Telefonnummer. Gerne können Sie uns auch eine kurze Vorstellung Ihrer Person übersenden. Wir bearbeiten Ihre Anfrage umgehend und melden uns dann persönlich bei Ihnen.
Bezug: ab 1.11.2022 oder nach Vereinbarung
Kaltmiete: 890 Euro zzgl. Nebenkosten
Nebenkosten: ca. 254 Euro zzgl. Haushaltsstrom
Stellplatzmiete: 17,50 Euro
890 Euro KALTMIETE zzgl. ca. 254 Euro NK = 1.144 Euro zzgl. Strom zzgl. Stellplatz
Die Küche kann von den Vormietern übernommen werden.
Haftungsausschluß:
Trotz regelmäßiger Prüfung von Daten, Bildern und Informationen übernehmen wir keine Gewähr für die Richtigkeit der Angaben, da das Exposé anhand der Unterlagen des Vermieters erstellt wurde!





























