Mietangebot
Bornheim-Brenig: SCHÖNE 3,5 Zi.- MAISONETTEWOHNUNG MIT 2 BALKONEN UND LOGGIA IN RUHIGER BESTLAGE, ca. 98 m² Wfl.
VERMIETET
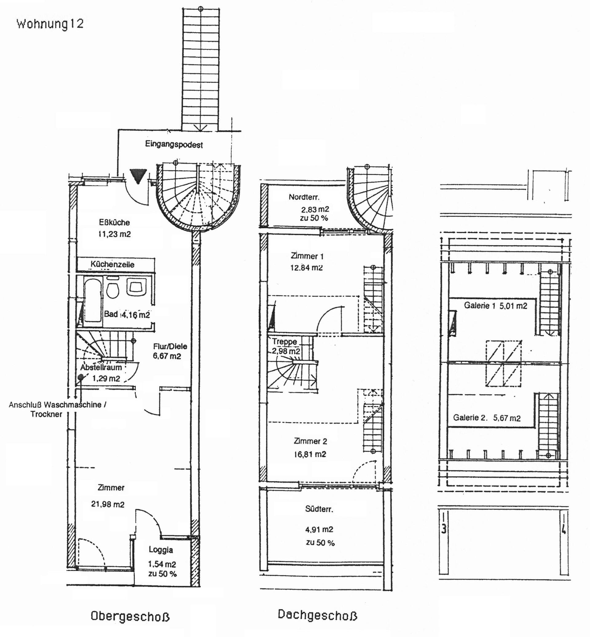
Objektnummer: 9318 Ort: 53332 Bornheim-BrenigWohnfläche: ca. 98 m² Zimmer: 3,5Schlafzimmer: 2Badezimmer: 1Etagenzahl: 1Kaltmiete: 900 EURNebenkosten: 294 EURWarmmiete: 1.194 EURStellplatz: 17,50 EURHaustiere: nur nach AbspracheKaution: 1.800 EURBaujahr: 1995Zustand: gepflegtHeizungsart: Gas-ZentralheizungFahrstuhl: kein FahrstuhlStellplatzart: Stellplatz im FreienStellplatzanzahl: 12 Balkone: (ca. 4,9 m² + ca. 2,8 m² )Loggia: ja (ca. 1,5 m²)Kellerraum: jaDSL: jaBad: Wannenbad ohne FensterSat TV: javerfügbar ab : 01.08.2022Energieverbrauchs-kennwert : 91 kWh/(m² *a) Energieverbrauch für WW ist enthalten
Objektbeschreibung
Diese außergewöhnliche 3,5 Zimmerwohnung mit Südterrasse (ca.4,9 m²), kleiner Loggia und zusätzlichem Nordbalkon (ca. 2,83 m²), befindet sich in der ersten Etage einer sehr modernen Wohnanlage in Bornheim- Brenig.
Jede der Wohnungen verfügt über einen eigenen Eingang. Bei dieser Wohnung ist der Eingang über eine separate Treppe mit sehr schönem Ausblick erreichbar.
Aufteilung:
Obergeschoß:
Eingangsbereich mit offener Küche; großer Wohnbereich (ca. 22 m² ) mit Zugang zur kleinen Süd- Loggia (ca.1,54 m² ); fensterloses Badezimmer mit Wanne, Abstellraum mit Waschmaschinenanschluß
Dachgeschoß:
Südterrasse (ca. 5 m² ) und Nordterrasse (ca. 3 m² ), 2 Schlafzimmer mit jeweils eigener Treppe zur kleinen Galerie
Bezug: ab 01.08.2022 oder nach Vereinbarung
Ausstattung
Böden: Laminat (Buche); Fliesen im Bad
Heizung:
Gaszentralheizung mit normalen Radiatoren. Warmwasser wird über die Gasheizung erzeugt.
Eigene, der Wohnung zugehörige Wasseruhren für Warmwasser und Kaltwasser sind vorhanden.
Ein Kellerabteil (ca. 5,6 m²) in einem Gemeinschaftskellerraum ist ebenfalls vorhanden.
Außenrolladen sind bei diesem Objekt keine verbaut.
Die Laminatböden und Terrassendielen der Wohnung werden vor der Neuvermietung erneuert. Das Badezimmer erhält neue Armaturen.
Lage
Ruhige Hanglage mit bestem Ausblick - umgeben von einem großem Garten. Die Entfernung zum Bäcker und Lebensmittelladen beträgt ca. 200 m. Bornheim Brenig bietet in unmittelbarer Nähe als Naherholungsgebiet den Naturpark Kottenforst-Ville. Hier erwarten Sie u.a. die Golfanlage Römerhof in einer Freizeit-Oase: 100 Hektar himmlisch ruhiges Golfparadies inmitten Feld, Wald und Obstwiesen.
Autobahnanschluß:
Ca. 8 km zur AS Swisttal-Heimerzheim der A 61 und ca. 7 km zur AS Bornheim der A 555.
Sonstiges
Wir bitten Sie höflich die nachfolgenden Punkte zu beachten und danken Ihnen herzlich für Ihr Verständnis.
Sehr gerne zeigen wir Ihnen die Vorzüge dieser Wohnung vor Ort. Bitte betreten Sie das Grundstück nicht ohne vorherige Terminabsprache mit uns.
Bei Interesse übersenden Sie uns bitte Ihre vollständige Adresse inklusive Ihrer Telefonnummer. Gerne können Sie uns auch eine kurze Vorstellung Ihrer Person übersenden. Wir bearbeiten Ihre Anfrage umgehend und melden uns dann persönlich bei Ihnen.
Kaltmiete: 900 Euro
Nebenkosten: ca. 294 Euro zzgl. Haushaltsstrom
Aussenstellplatz: 17,50 Euro
900 Euro Kaltmiete zzgl. 17,50 Euro KFZ-Stellplatz zzgl. ca. 294 Euro NK = 1.211,50 Euro zzgl. Strom
Eine Küche ist nicht vorhanden und muß vom neuen Mieter selbst eingebaut werden.
Angaben zum Energieausweis:
Energieausweistyp: Verbrauchsausweis
Endenergieverbrauch: 91 kWh/(m²*a) Energieverbrauch für Warmwasser ist enthalten
Wesentlicher Energieträger: Gas - H
Baujahr des Hauses: 1995
Energieeffizienzklasse: C
Heizungsart: Zentralheizung
Haftungsausschluß:
Trotz regelmäßiger Prüfung von Daten, Bildern und Informationen übernehmen wir keine Gewähr für die Richtigkeit der Angaben, da das Exposé anhand der Unterlagen des Vermieters erstellt wurde !
Eine Zwischenvermietung ist nicht ausgeschlossen !
Anmerkung zum Datenschutz
Falls Sie uns Ihre Daten über ein Immobilienportal oder direkt per E-Mail zukommen lassen, werden Ihre Daten von uns für höchstens vier Wochen zwischengespeichert, um Terminvereinbarungen für Objektbesichtigungen zu organisieren oder auch Exposés per Post oder E-Mail versenden zu können. Nach Ablauf dieser vier Wochen werden Ihre Daten gelöscht. Ähnliche oder neue Angebote können wir Ihnen nur nach vorheriger Rücksprache und Zustimmung ihrerseits zukommen lassen.








































