Mietangebot
Bornheim-Brenig: MODERNE 3 ZIMMER-MAISONETTEWOHNUNG MIT KLEINEM SÜD-BALKON IN RUHIGER BESTLAGE, ca. 73 m² Wfl.
VERMIETET
Objektnummer: 9311-2Ort: 53332 BornheimWohnfläche: ca. 73 m² Zimmer: 3Schlafzimmer: 1Badezimmer: 1Haustiere: nur nach VereinbarungKaltmiete: Nebenkosten: Warmmiete: Kaution: Stellplatzanzahl: 1Baujahr: 1995Zustand: gepflegtHeizungsart: Gas-ZentralheizungFahrstuhl: kein FahrstuhlStellplatzart: Stellplatz im Freien oder TGEtagenzahl: 3,00Balkon/ Garten: kleiner Balkon + kleiner Gartenanteil unterkellert: eigener KellerraumDSL: jaBad: Wannenbad ohne FensterSat TV: javerfügbar ab :Energieverbrauchs-kennwert : 91 kWh/(m² *a) Energieverbrauch für WW ist enthalten
Objektbeschreibung
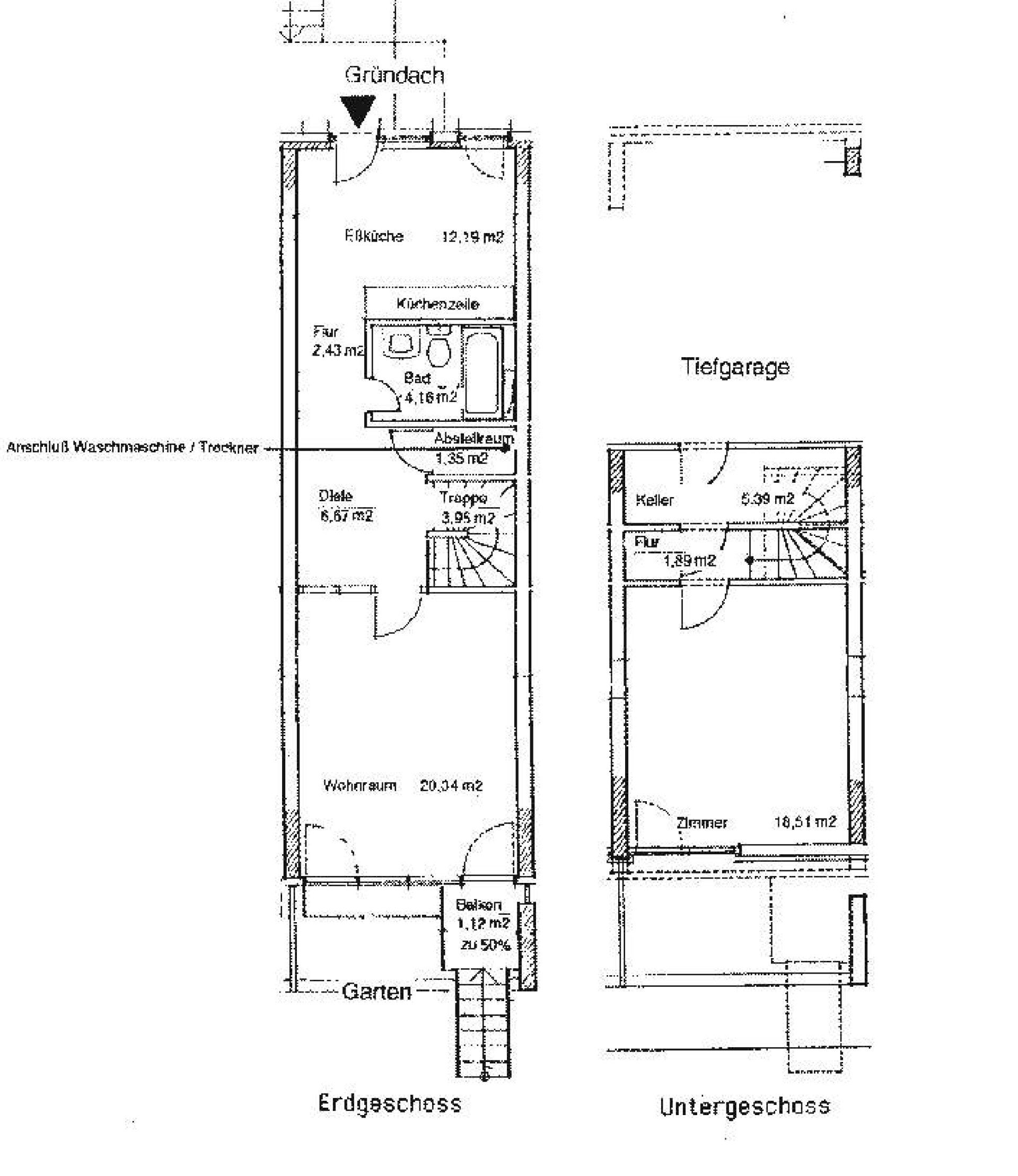
Dieses außergewöhnliche 3 Zimmerwohnung mit kleinem Südbalkon (ca. 2 m²) und kleinem Gartenanteil befindet sich im Erdgeschoß und Untergeschoß einer sehr modernen Wohnanlage in Bornheim-Brenig und ist ideal für ein bis zwei Personen geeignet (nur 1 Schlafzimmer vorhanden).
Jede der Wohnungen verfügt über einen eigenen Eingang. Bei dieser Wohnung ist der Eingang über ein Gründach mit sehr schönem Ausblick erreichbar. Auch vor der Eingangstür (Nordseite des Hauses) haben Sie die Möglichkeit eine Sitzgelegenheit zu stellen.
Aufteilung
Im EG:
Eingang über die offene Küche; angrenzend Flurbereich mit Treppenabgang ins Untergeschoß, ein fensterloses Badezimmer mit Wanne, eine Abstellkammer mit Anschlußmöglichkeit für Waschmaschine und Trockner; großes Wohnzimmer mit einem kleinen Balkon (ca. 2 m² ) über den man zum darunter liegenden kleinen Gärtchen kommt.
Böden: Laminat (Buche); Fliesen im Bad
Im UG:
kleiner Flur, Schlafzimmer, Terrasse, Kellerraum, separater Ausgang zum Stellplatz durch die TG
Inklusive ca. 5 m² Kellerraum.
Bezug:
Haustiere: nur nach Absprache !
Das außergewöhnliche dieser Wohnung ist der tolle Ausblick ins Grüne und der kleine Gartenbereich auf der Südseite das Hauses, welchen Sie vom Balkon über eine Treppe erreichen können.
Ausstattung
Heizung:
Gaszentralheizung mit normalen Radiatoren. Warmwasser wird über die Gasheizung erzeugt.
Böden: Laminat und Fliesen
Ein eigener Kellerraum ist vorhanden.
Außenrolladen sind bei diesem Objekt keine verbaut.
Lage
Ruhige Hanglage mit bestem Ausblick - umgeben von einem großem Garten. Die Entfernung zum Bäcker und Lebensmittelladen beträgt ca. 200 m. Bornheim Brenig bietet in unmittelbarer Nähe als Naherholungsgebiet den Naturpark Kottenforst-Ville. Hier erwarten Sie u.a. die Golfanlage Römerhof in einer Freizeit-Oase: 100 Hektar himmlisch ruhiges Golfparadies inmitten Feld, Wald und Obstwiesen.
Autobahnanschluß:
Ca. 8 km zur AS Swisttal-Heimerzheim der A 61 und ca. 3 km zur AS Bornheim der A 555.
Sonstiges
Wir bitten Sie höflich die nachfolgenden Punkte zu beachten und danken Ihnen herzlich für Ihr Verständnis.
Sehr gerne zeigen wir Ihnen die Vorzüge dieser Wohnung vor Ort. Bitte betreten Sie das Grundstück nicht ohne vorherige Terminabsprache mit uns.
Die Küche könnte vom Vormieter übernommen werden und in der Wohnung verbleiben.
Angaben zum Energieausweis:
Energieausweistyp: Verbrauchsausweis
Wesentlicher Energieträger: Gas
Heizungsart: Zentralheizung
Baujahr des Hauses: 1995
Energieeffizienzklasse: C
Energieverbrauchskennwert: 91 kWh/(m²*a) Energieverbrauch für Warmwasser ist enthalten
Haftungsausschluß:
Trotz regelmäßiger Prüfung von Daten, Bildern und Informationen übernehmen wir keine Gewähr für die Richtigkeit der Angaben, da das Exposé anhand der Unterlagen des Vermieters erstellt wurde !
Eine Zwischenvermietung ist nicht ausgeschlossen !
Anmerkung zum Datenschutz
Falls Sie uns Ihre Daten über ein Immobilienportal zukommen lassen, werden Ihre Daten von uns für höchstens vier Wochen zwischengespeichert, um Terminvereinbarungen für Objektbesichtigungen zu organisieren oder auch Exposés per Post oder E-Mail versenden zu können. Nach Ablauf dieser vier Wochen werden Ihre Daten gelöscht. Ähnliche oder neue Angebote können wir Ihnen nur nach vorheriger Rücksprache und Zustimmung ihrerseits zukommen lassen.





























